ЖК «Южные кварталы»
ЖК «Южные кварталы»
мкр. Юго-западный
В процессе строительства
-6.10.3
10
1 комната, 45,70 м²
8 774 400 ₽
10 из 24этаж
10 из 24 этаж
Характеристики
Площадь
45,70 м²
Цена за м²
192000,00 ₽
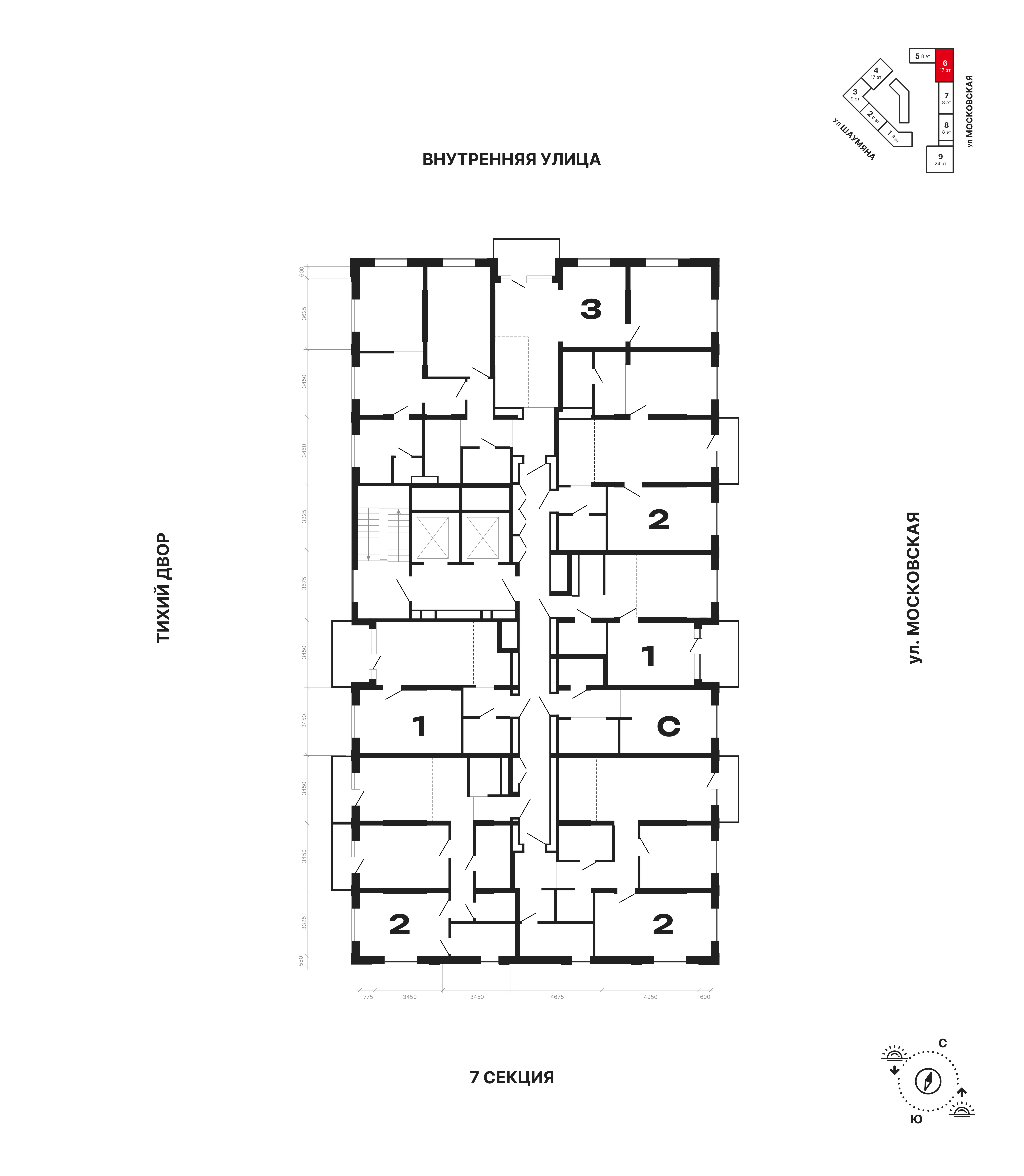
Этаж
10 из 24
Номер квартиры
-6.10.3
Секция
6

Генплан

4

4 дом

14 свободных квартир

  • 1-комнатные от 8,8 млн ₽
  • 2-комнатные от 11,6 млн ₽
Выбрать квартиру
6

6 дом

1 свободная квартира

  • 1-комнатные от 10,1 млн ₽
Выбрать квартиру
7

7 дом

1 свободная квартира

  • Студии от 7,7 млн ₽
Выбрать квартиру

Отделка

Предчистовая отделка

В квартирах выполнена отделка под чистовую. Стены выровнены и оштукатурены, на полу ー цементно-песчаная стяжка толщиной 60 мм и слой шумоизоляции. В ванной сделана дополнительная гидроизоляция. Проведена разводка электрики и сантехники.

Установлены розетки, выключатели, радиаторы отопления с терморегуляторами и приборы учета, показания которых благодаря системе телеметрии автоматически передаются в управляющую компанию. Окна пластиковые, на входе — сейф-дверь.

Похожие Квартиры

1 комната, 46,00 м²
8 832 000 ₽
1 комната, 46,00 м²
ЖК «Южные кварталы»
1 комната, 46,30 м²
9 028 500 ₽
1 комната, 46,30 м²
ЖК «Южные кварталы»
1 комната, 47,30 м²
9 081 600 ₽
1 комната, 47,30 м²
ЖК «Южные кварталы»
1 комната, 45,80 м²
8 793 600 ₽
1 комната, 45,80 м²
ЖК «Южные кварталы»
1 комната, 46,00 м²
8 970 000 ₽
1 комната, 46,00 м²
ЖК «Южные кварталы»
1 комната, 45,60 м²
8 892 000 ₽
1 комната, 45,60 м²
ЖК «Южные кварталы»